25 Dennis Street, THIRLMERE
House
THIS IS THE ONE!!
Discover the epitome of luxury and comfort in this stunning property that exudes elegance and sophistication. With display home quality, meticulous attention to detail and offering 4,058 sqm of land, this residence promises a lifestyle of opulence and tranquillity.
The heart of the home boasts a state-of-the-art kitchen and walk-in pantry, seamlessly integrated with a spacious living and dining area therefore creating the perfect ambiance for both everyday living and entertaining.
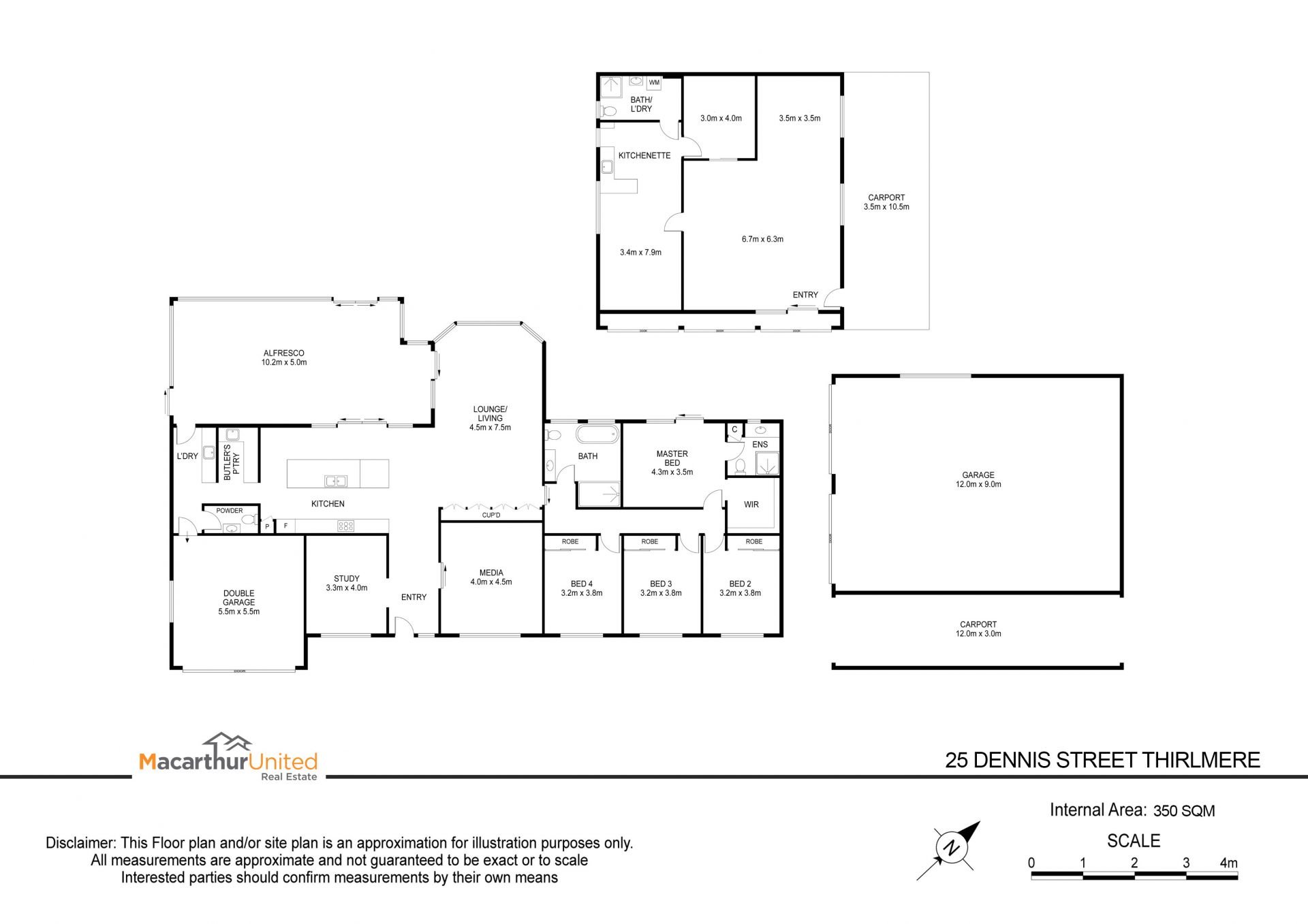
This home offers versatility with four bedrooms all with BIR's, providing ample space for family and guests. Additionally, a dedicated media room and study adding functionality to suit any lifestyle.
Retreat to the grandeur of the master suite, featuring walk-in robe and stunning ensuite. Indulge in luxury every day in your own private space.
Step into a world of outdoor bliss with an enclosed outdoor area, overlooking your sparkling in-ground swimming pool and Cabana, setting a stage for unforgettable gatherings. Whether hosting friends or enjoying a quiet evening, everyone will love this space of style and comfort.
Also, this property features a monster 12m x 9m high clearance shed, generous size teenagers retreat and man cave, both with adjoining carports. Opportunities like do not last long!!
25 Dennis Street is a testament to quality craftmanship and attention to detail. Being newly renovated and immaculately maintained, it presents a fantastic opportunity for those seeking a property of the highest calibre.
Situated in ever-popular Thirlmere, this home is surrounded by local shops, parks, and schools. Have location as a convenience and do not miss out!
Additional features include:
- Study/ Home Office
- Plantations shutters
- Plenitude of solar
- Wood fireplace
- Dishwasher
- Manicured Lawns
- Ducted A/C
- 2 x Automated gates
- Additional access from private road
- Abundance of built-in storage space
- Gas cooking
- Automated garage door
Any questions or queries? Don't hesitate to contact either Jake Alchin on 0438228722 or Ryan Shumack on 0426984815 today.
Disclaimer: The information contained herein has been provided by sources we believe to be reliable however, all interested persons should rely on their own enquires.
The heart of the home boasts a state-of-the-art kitchen and walk-in pantry, seamlessly integrated with a spacious living and dining area therefore creating the perfect ambiance for both everyday living and entertaining.
This home offers versatility with four bedrooms all with BIR's, providing ample space for family and guests. Additionally, a dedicated media room and study adding functionality to suit any lifestyle.
Retreat to the grandeur of the master suite, featuring walk-in robe and stunning ensuite. Indulge in luxury every day in your own private space.
Step into a world of outdoor bliss with an enclosed outdoor area, overlooking your sparkling in-ground swimming pool and Cabana, setting a stage for unforgettable gatherings. Whether hosting friends or enjoying a quiet evening, everyone will love this space of style and comfort.
Also, this property features a monster 12m x 9m high clearance shed, generous size teenagers retreat and man cave, both with adjoining carports. Opportunities like do not last long!!
25 Dennis Street is a testament to quality craftmanship and attention to detail. Being newly renovated and immaculately maintained, it presents a fantastic opportunity for those seeking a property of the highest calibre.
Situated in ever-popular Thirlmere, this home is surrounded by local shops, parks, and schools. Have location as a convenience and do not miss out!
Additional features include:
- Study/ Home Office
- Plantations shutters
- Plenitude of solar
- Wood fireplace
- Dishwasher
- Manicured Lawns
- Ducted A/C
- 2 x Automated gates
- Additional access from private road
- Abundance of built-in storage space
- Gas cooking
- Automated garage door
Any questions or queries? Don't hesitate to contact either Jake Alchin on 0438228722 or Ryan Shumack on 0426984815 today.
Disclaimer: The information contained herein has been provided by sources we believe to be reliable however, all interested persons should rely on their own enquires.
